August
4.2018 -
八 月 第 一 周 工 地 巡 检-
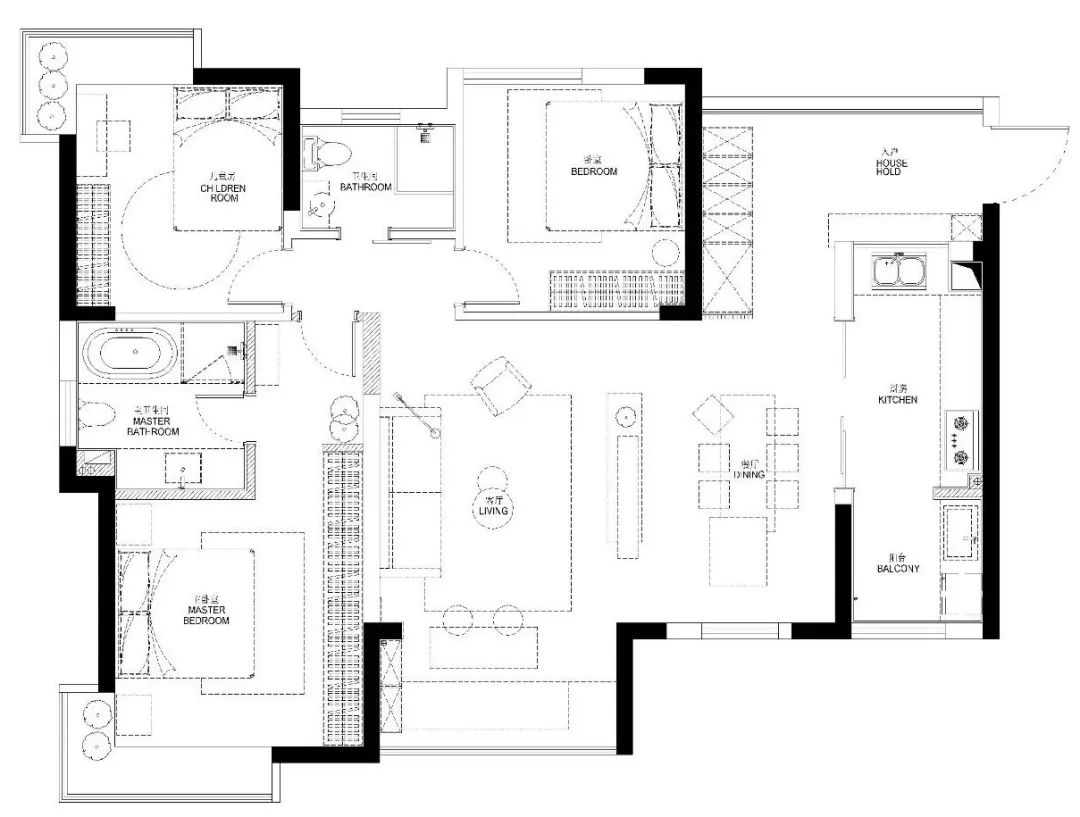
项目名称:绿地468
面 积:100㎡
户 型:三室两厅两卫
施工执行师:土豆
执行师助理:佩奇
施工阶段:后期 --- 硬装结束
施工造价:8万元
Plane layout | 平面布置
Construction site | 施工现场
▲ “绿地468”剧透版硬装完成照,大家默默等候软装到位吧
▲现场泥工做钢筋混泥土浇筑水泥台,表面用水泥做哑光处理。
▲制造幸福食物的厨房
▲采光超级好的榻榻米卧室,小编最喜欢的地方,必须分享给你们看!
项目名称:紫藤花园
面 积:245㎡
户 型:四室三厅三卫
施工执行师:十方
执行师助理:阿冲
施工阶段:后期 --- 硬装结束
施工造价:19万6千元
Plane layout | 平面布置( 不含顶楼花园图 )
Construction site | 施工现场
▲客厅满眼都是舒适的木色
▲仰视图,猜猜这么多柜子是做什么的?
▲是哈利波特的藏书阁,还有哈尔的移动梯子❤
▲极简的厨房配色,简单大方。
“施工端负责的硬装施工算是告一段落了,接下来就要看设计端的小哥哥们软装搭配的效果了。以上两组工地算是预告片啦,大家等候软装搭配完成后的毕业照吧~”
(ps:其实是设计小哥不让我发那么多照片,说要保持神秘感。看我发的预告照片那么少,大家应该能感受到大白我的求生欲了吧
)
项目名称:天悦府
面 积:130㎡
户 型:三室两厅两卫
施工执行师:土豆
执行师助理:毛毛
施工阶段:前期 --- 石膏找平
施工造价:9万9千5百元
Plane layout | 平面布置
Construction site | 施工现场
▲石膏找平后的整体效果图
▲最左侧白色条状物为阳角条(墙体突出的转角部分称之为阳角,反之凹进去的角为阴角)。
中间网状部分为玻纤网,防止墙体后期开裂。
最右侧灰色部分为石膏找平后的效果。
▲客厅吊顶及石膏找平后的整体效果。
项目名称:天府美岸
面 积:138 ㎡
户 型:三室两厅两卫
施工执行师:土豆
执行师助理:毛毛
施工阶段:前期 —— 墙面石膏找平
施工造价:10万元
Plane layout | 平面布置
Construction site | 施工现场
▲这种要比常规砖大一些,相应的更需要施工师傅的耐心以及铺贴瓷砖时所需的辅料质量
▲明确的水电走向标识
▲独特的石膏板造型,可以猜猜是用来干嘛的,反正猜对了也没有奖励啦
...... 每周巡检持续中 ......
ABOUT US | 关于我们
▲ 长按图片,识别二维码关注我们
工作室新地址:成都市天府三街凯旋广场二栋303室
(需提前一天预约)
【施工】联系大白,微信号:15882440804
【设计】联系小彤,微信号:18980525974
微博企业号:成都造梦家施工工作室
设计公众号:拾光悠然
往 期 回 顾
每周工地巡检 | 20180728期 西瓜味的夏天


