点击上方“ 蓝色字 ”可以订阅哦!
楼盘名称:日月光中心伯爵居
套内面积:95㎡
户型结构:两室一厅一卫
设计风格:混搭
设计师:吴义云
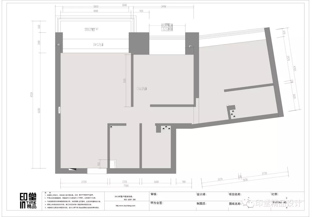
(原始户型)
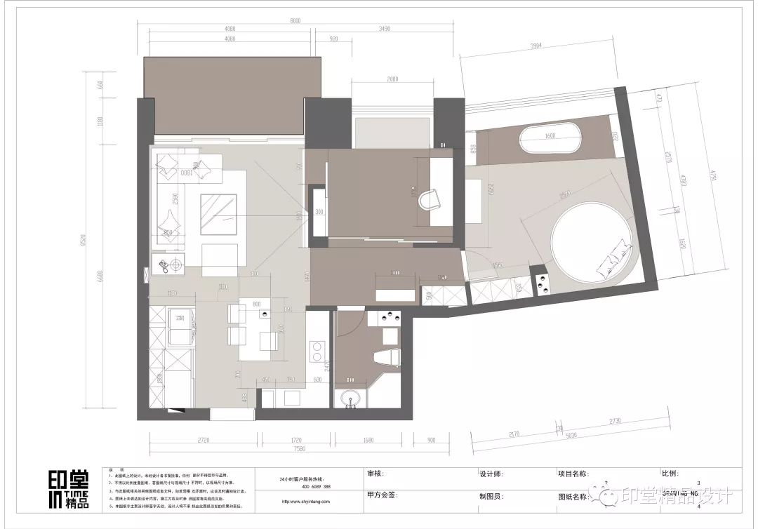
(平面图)
穿梭在快节奏的城市里,
身心容易变得疲惫。
如果能留一片舒适的空间,
在忙碌之余便能享受一份雅致。
这套案例是吴义云设计师5年前的作品,由于业主张女士是独自居住,所以大胆地选择了她喜欢的黑白色为主色调。近期由于工作原因张女士被调派海外,特意邀请了设计师重返故地。5年的时光稍纵即逝,打开门的瞬间一切又仿佛回到起点......
客厅
黑色的沙发背景墙搭配深灰色绒布沙发会显的沉闷?那么不如加上白色的软装挂画,让空间一下活了起来。铁艺的鸟笼花卉元素作为装饰,打造出别致的个性住宅,酷酷的空间中带一点温馨。
电视采用升降幕,安装在房顶,由吊顶进行隐蔽,打造了一个家庭影院,享受一个人的观影时光。
厨房
开放式厨房和餐厅连在一起,
满足个人的饮食生活,搭配别致的吊灯,完美融入了高雅的厨房氛围。
卧室
把浴缸搬进卧室,在卧室就能享受到泡澡的乐趣,让身心放松,用自己的喜欢的方式生活!简约时尚的圆形床和浴缸的弧度相互对应。
有红色点缀的装饰画和柜子给温润的空间注入活力。
书房
黑色的大移门隔出一个独立的工作区和健身区,移门一边藏有书架、桌边的储物柜和墙面上的置物架实用又美观。摆上装饰画和立体装饰,在这个空间里足够让人静静思考。
玄关&走廊
进门左侧的墙面打造了一个黑色的储物柜,大大增加了储物空间。通往卧室的走廊处也放置了柜子便于收纳,上方的挂画和摆件让过道更有艺术范儿。
印堂精品装饰
官方网址:http//www.shyintang.com/
免费量房&预约设计师热线
400-608-9388
印堂总部旗舰店:上海市长宁区江苏北路30号2号楼
印堂成山店:上海市浦东新区北蔡镇成山路2061号
印堂联洋店:上海市浦东新区迎春路1093号(装修升级中…)
点击“印堂精品设计”查看更多

