苜蓿
英语教师
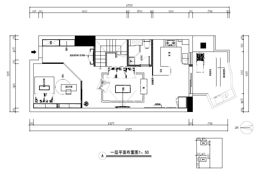
使用面积 152㎡ 的 LOFT 位于杭州,
装修布置历时一年,
总计花费约 45 万,硬装 30 万,软装 15 万,
喜欢室内设计、旅游、做美食。
在美国居住了很多年的苜蓿,最喜欢的家,是在加州硅谷,她说除了能每天享受到加州的阳光,因为很多科技公司驻扎在那里,生活也多了很多便利。
选择居住在杭州这座城市,苜蓿只用了一天,一方面是因为杭州的人文气息,美景如画,另一方面,也是因为驻扎了很多的科技公司,就和她当年选择定居硅谷,一样的选择。所以在苜蓿家的一进门处,挂了两幅城市图,一幅是在美国居住的城市,另一幅就是杭州。
而最终选择了 LOFT 户型的房子,用她的话说 —— 「买一层送一层啊」,此外,她选中的这套 LOFT 还带有独立的开放式阳台,虽然现在只放了一株柠檬树,但是苜蓿说,「在美国的时候,就特别喜欢房子外面的花园,这个阳台,以后也会好好打造起来。」
决定了杭州,买下 LOFT,苜蓿却花了整整一年的时间,才算把房子装修成了现在满意的样子,热爱生活的女孩,对于自己和老公的家,自然特别的在意。
在装修的过程中,LOFT 有 LOFT 的好,因为在最初,就是一套空无一物的「空盒子」,将近 5 米的层高,可以自由自在任你发挥,空间的利用和设施的安排,都由你做主。
一进到苜蓿的家,首先看到是非常宽敞的换鞋凳和整面墙的鞋柜,可以和老公一起换鞋出门或归家,绝对是一件小小又浪漫的事情,鞋柜之所以这么大,除了两个人的需求,苜蓿也为以后有小宝宝提前做了准备。
进门后的一侧,是苜蓿和老公的书房,这个房间让苜蓿花了不少心思,想当做书房来和老公一起办公或者读书,又想要比较大的空间,为父母来时或者宝宝出生后,提供一个居住的空间。
于是,采用了钢架 + 玻璃门,以钻石切面造型,区隔出了一个保证了空间,且不影响步入客厅的房间。
客厅和餐厅,在同一个空间当中,厨房则采用了半开放式,为了保持家里的简洁和敞亮,苜蓿省却了茶几和过多的零散小装饰物,仅保留了沙发、一组矮柜和一张宽大的多人餐桌,现在看起来,也是让人觉得十分舒适自然。
半开放式的厨房位于阳台的旁边,纯纯的白色,想想在阳光满溢的一天,连做饭都变得美美哒。
通过回型楼梯,是苜蓿家的二楼,会发现从楼梯开始,就已经和一层有了明显的区别,一层整屋使用了灰色系的地板,整体也是黑白灰配木色的利落舒适模样,而从楼梯到二楼,都使用了暖黄色的地板,让人觉得格外温暖放松。
LOFT 虽好,但苜蓿的房子最初也有「尴尬」,就是位于房子较高位置,不可挪动拆卸的横梁,因为横梁的存在,所以二楼的房间划分,很大一部分设计,都是为了更好的隐藏横梁,比如客厅的墙面,就是隐藏了一处横梁,同时苜蓿还把这面墙上做了个玻璃窗,也是为了增加房间的通透感。
在苜蓿家的卧室,藏了两个小心思的存在,一处是卧室里的电视墙柜,除了给房间增加更多收纳空间,也是为了隐藏不可挪动的横梁。
另一处,就是卧室中的卫生间,走进卫生间,先是一条「秘密通道」,洗手台、梳妆台,一应俱全。
穿过这条通道,干湿分离的洗浴区内,放了一张舒适的大浴缸,浴缸旁,是一扇百叶窗,想想宁静的晚上,泡着泡泡浴,一杯红酒,还有窗外的霓虹夜景,这才是最美好的生活吧。
二楼的另一侧,被苜蓿做成了衣帽间,开放式与半开放的柜子兼备,配上一面大大的穿衣镜,每个女孩看到都会羡慕吧。
美美的杭州,美美的苜蓿,美美的家,祝苜蓿的每一天都能最幸福!
更多与苜蓿关于家的话题:
Q:住颜-颜颜
A:苜蓿
Q:对软装单品的选择,有没有原则?
A:沙发、床、床垫一定要舒服!所以一定不能网购,要去家具店躺个遍,选最舒服的那款!颜色要灰色,和家里的黑白灰统一。餐桌椅要用胡桃木实木,符合现代风的装修风格,看起来也很高档。使用频率最高的东西,价格不重要,美观和使用感才重要。
Q:有了自己的房子,有了家,最大的感觉是什么?
A: 再也不将就。以前租房子,既不能改变硬装,觉得哪里不舒服也只能忍着,也不舍得改变软装,总觉得搬了家就扔了很可惜。有了自己的房子,我在挑选每一样物品都不将就!连一个盘子都会再三比较,选最爱的那个。
Q:朋友是怎么评价你家里的呢?
A:朋友说,在楼下豪华的大厅,以为进了五星级酒店,喝个下午茶,蛋糕放在精心挑选的甜品盘里,在大理石桌面上拍照,发了朋友圈朋友以为是在 lady m。更没想到晚上还可以在这个“五星级酒店里”吃火锅,坐在超软的沙发上看超清电影。朋友都说,我家是不仅美观而且超实用的设计。
Q:对自己现在的家,已经是很满意的状态吗?或者还有什么更好的期待。
A:很满意,等看腻了再期待。
… END …
来自 苜蓿 的心水好物推荐
▲宜家 拉斯克 手推车
适用于狭小的空间,可随心推到任何你需要的地方。
用它作为额外储物空间,安放你所有的厨用器具、书桌配件。
参考价格:约 ¥249
▲方太 水槽洗碗机
将水槽和洗碗机融为一体,
给碗盘、水果清洗带来更多便利。
25 分钟就可以洗好烘干消毒,非常高效。
参考价格:约 ¥6800
WE NEED YOU
如果你或者身边的朋友是个有意思的人,
住在北京,
愿意分享对家和生活的态度主张,愿意上镜,
家里的软装布置,有品位,有质感,
欢迎把你或 TA 介绍给颜颜,
一段对自己 or TA 的简短介绍,几张家里的照片,
邮件发送到zhuyan@ikaixiang.com,
下一次的主角,就是你们咯!
↓更多精彩视频↓
全开放卫生间和纯黑厨房,他在自家LOFT打造出极致的设计感
为了5.6米高的落地窗,他买下190㎡ LOFT,还把最爱的壁炉也装进了家
换掉地板家具,打通客厅书房,结婚10年后爆改150㎡老房,只为相伴更多个10年

